Besoin d'aide ?

Tapez le mot clé que vous recherchez

Notre équipe est à votre disposition

Contactez-nous
Présentation Fonctionnalités Avantages Ressources Produits associés FAQ

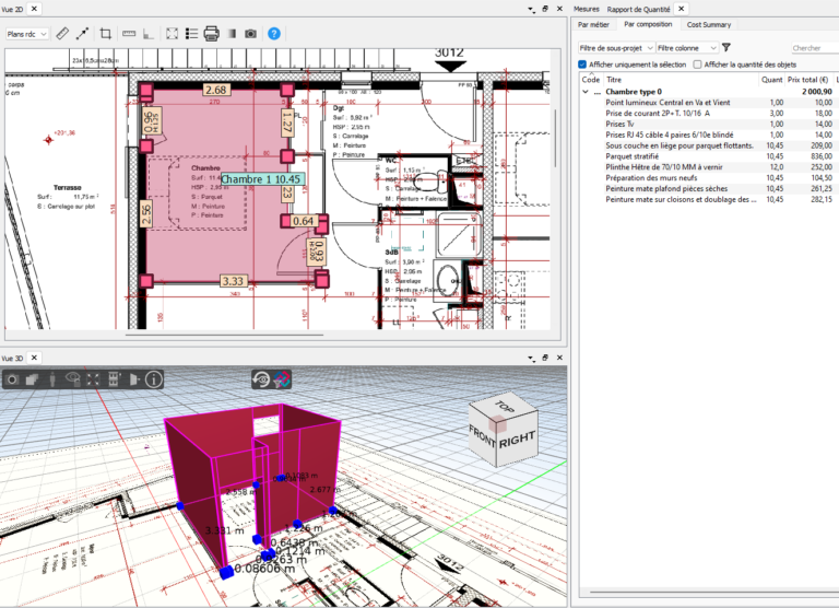
Avec JustBIM MAX, obtenez vos métrés avec précision : calculez automatiquement les linéaires et surfaces sur plans PDF, chiffrez avec des prestations détaillées et visualisez vos métrés en 3D pour un contrôle optimal.

Logiciel de métrés pour le BIM

  • Métré sur plans PDF avec compteur d’objet , linéaires, surfaces au sol , surfaces verticales , revêtements des pièces
  • Import de vos « contenus et bibliothèques » de prestations (formats Excel, CSV et DeviSOC)
  • Chiffrage des prestations avec bibliothèque de prestations depuis DeviSOC. Connexion à Kolibrx Studio
  • Rapport de coûts par prestations et par composition
  • Affichage en 3D des métrés sur PDF et images
  • Import IFC et visualisation 3 D
  • Chiffrage des prestations sur maquette IFC
  • Export prestations / articles vers DeviSOC / Excel
  • Export enrichi IFC avec les prestations et la structure des lots
  • Associer des classifications aux objets 3D, rapport de coûts par classification
  • Module d’automatisation d’association des compositions aux objets 3D
  • Annotations BCF sur maquette IFC
  • Contenus compatibles FLEXBIM5D

De la 2D au 3D jusqu'au chiffrage

Grâce à JustBIM MAX, logiciel de métrés et de chiffrage pour maquettes BIM. Avec JustBIM MAX, vous pourrez chiffrer des éléments issus de plans 2D / PDF mais aussi de maquettes 3D. En un clic passez de la 2D à la 3D ou vice versa…

  • Facile et rapide à prendre en main
  • Chiffrage plus précis et plus rapide
  • Fini les documents papier et les ressaisies multiples
  • Ré-import sans ressaisie et modification des métrés existants en cas de mise à jour des plans
  • Contrôle des métrés facilités grâce aux plans de repérage et aux légendes.
  • Mise à jour automatique du chiffrage en cas de modification de la maquette
  • Gestion des mises à jour des plans sans ressaisie des métrés
  • Connexion directe à DeviSOC (logiciel de CCTP, DPGF, etc…) et Excel pour tous vos exports de documents d’appels d’offres.
Outil pièce JustBIM

Vidéos, webinars, tutoriels, etc...

L’estimation de vos projets de construction enfin facilitée ! Avec JustBIM PRO vous pouvez également visualiser et contrôler en 3D les métrés issus du plan 2D.

Accédez à de nombreuses ressources sur JustBIM MAX : des webinars, tutoriels, démo, aide en ligne, etc…

JustBIM MAX est le logiciel de chiffrage idéal pour tous les métiers du bâtiment qui nécessitent des chiffrages précis pour la réalisation de devis ! Si vous travaillez sur plans 2D ou sur maquettes BIM, JustBIM MAX est fait pour vous ! Vous allez pouvoir chiffrer n’importe quel projet de façon rapide et précise…

Prendre RDV pour une démo

Complétez vos équipements

Avec DeviSOC et une bibliothèque d'ouvrages adaptées à la rédaction de CCTP

Schéma de l'automatisation CCTP → DPGF → Export
DeviSOC Maîtrise d'œuvre : CCTP, DCE et suivi de chantier pour architectes

Architectes, maîtres d'œuvre, bureaux d'études : DeviSOC Maîtrise d'œuvre vous a...

Lire la suite
Bati CCTP

La bibliothèque de CCTP "Bati CCTP" du CSTB est la référence pour rédiger vos de...

Lire la suite

Questions fréquemment posées

Comment centraliser la gestion documentaire d’un projet BTP ?

La centralisation des données projet (plans, CCTP, quantitatifs, contrats, situations de travaux...) est cruciale pour les maîtrises d’œuvre et les contractants généraux. DeviSOC offre une interface unique pour suivre l’ensemble des documents, du DCE à la réception du chantier.

Il gère aussi les avenants, les propositions de paiement et les comptes-rendus de chantier. Couplé au serveur de projets SOC, il permet un travail collaboratif fluide, même à distance.

Pourquoi Word et Excel freinent les bureaux d’études dans leur croissance ?

Word et Excel ne sont pas adaptés à la gestion multi-projets ou à la structuration des pièces écrites techniques. Ils entraînent des erreurs de cohérence, un manque de traçabilité et une perte de temps importante.

DeviSOC centralise tous les documents et automatise les liens entre CCTP, DPGF, BPU, estimations et appels d’offres. Selon notre dernière étude, les utilisateurs ont gagné en moyenne 60 % de temps après l’abandon de Word/Excel.

Comment comparer automatiquement les offres d’un appel d’offres BTP ?

Avec DeviSOC, les économistes et MOE peuvent importer les offres des entreprises et générer automatiquement un tableau comparatif : prix de base, options, écarts, notes techniques, classement par critères...

Les modifications sont répercutées en temps réel, et les meilleurs choix sont objectivés. C’est un outil précieux pour fiabiliser les consultations dans les marchés publics et privés.

Comment automatiser le chiffrage depuis une maquette BIM (IFC, Revit) ?

BIMQuantify est un plugin intégré à Revit qui permet de calculer automatiquement les quantités et coûts à partir de la maquette. Il affecte les prestations aux objets 3D, même non dessinés, grâce à des formules personnalisables.

Les quantités sont directement exportables vers DeviSOC pour générer CCTP, DPGF et analyse d’offres. Idéal pour les BET, architectes et contractants généraux travaillant en OpenBIM.

Quel logiciel utiliser pour faire un métré sur un plan PDF ?

Pour réaliser un métré rapide et précis sur un plan PDF, JustBIM est la solution idéale. Il permet de mesurer des linéaires, surfaces, volumes ou objets directement sur plans 2D (PDF, JPEG, PNG...), avec génération automatique des quantités.

Les métrés peuvent être exportés vers Excel ou DeviSOC pour la création des pièces écrites, évitant toute ressaisie. Les architectes, économistes et BET gagnent un temps considérable en phase d’étude.
JustBIM est un logiciel de métrés et d’estimation des coûts de construction sur plans PDF et aussi sur maquettes 3D. Découvrez l’ensemble de la gamme JustBIM et trouvez celle qui correspond le mieux à votre façon de travailler !
Voir tous les produits JustBIM
JustBIM logiciel de métrés et chiffrage sur maquette

Webinar gratuit

DeviSOC et JustBIM boostés par l'IA ! RDV au webinar le 9 avril pour découvrir les nouveautés en avant-première !